

Foster + Partners設計的PGA TOUR Studios坐落于佛羅里達州蓬特韋德拉海灘,占地約15,320平方米,三層樓高,形成了一個綜合性的園區布局。

這座新建筑位于TPCSawgrass球員體育場球場南側,緊鄰 PGA巡回賽總部大樓,后者也是由 Foster +Partners 設計。建筑采用與總部一致的設計語言,南、東立面設有寬敞的柱廊,大型懸挑屋頂提供遮蔭,同時,玻璃幕墻確保了充足的自然采光,并可眺望水景及周邊園區。園區內設有景觀步道連接兩座建筑,方便員工與訪客通行。建筑材料選用白色金屬、混凝土與玻璃,以保持整體風格的協調統一。

PGA TOUR Studios的設計精髓在于其整體的輕盈感和流動感,雖然建筑本身極為寬大,但通過巧妙的比例,建筑在視覺上不會顯得沉重。室內設計方面,建筑采用了極簡主義與現代科技的融合。大樓內部空間的布局以開闊、靈活為主。


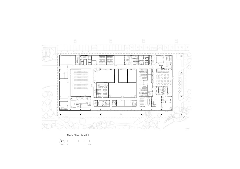
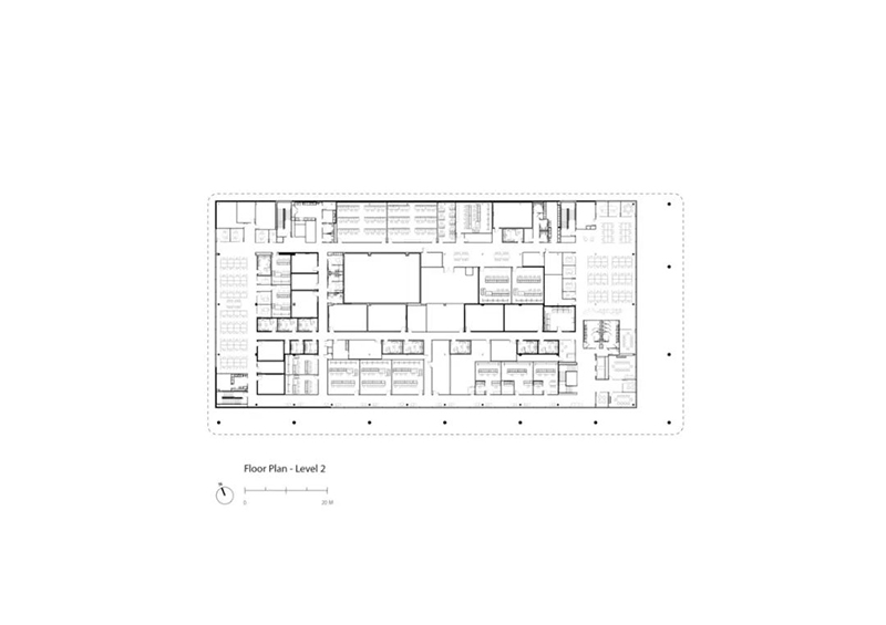
PGA TOUR Studios采用了鋼結構與混凝土為基礎,確保了穩固性與長期使用的可靠性。布局設計方面,PGA TOUR Studios能夠同時監控并顯示多達144個視頻和音頻信號,以滿足制作需求。此外,靈活的音頻控制室支持多種節目制作格式。內部空間寬敞且可靈活調整,方便未來根據需求進行變化。PGA TOUR Studios內還配有八間制作室、控制室、LED演播室、定制視頻查看中心、34座影院和播客錄音室。

設計團隊通過采用低碳材料和先進的節能技術,實現了13%的能耗減少。為進一步減少碳排放,建筑還設有高效的能源管理系統,并在停車場內提供電動車充電服務,支持可持續出行。此外,設計團隊采用了創新的雨水管理系統,使周圍環境不受影響。通過園林綠化和灌溉策略的綜合應用,極大降低了對水資源的依賴。


建筑設計注重使用經過嚴格評估的材料,超越了LEED標準要求,與總部大樓一樣,獲得了LEED BD+C金級認證。建筑材料的選擇都考慮了長期可持續性,確保建筑的安全性與健康性。此外,親生物設計元素如天然材料、室內綠化和室外景觀被廣泛運用。









設計師:Foster + Partners
項目地點:弗羅里達州
文章轉自:青年建筑